Development proposed for forested area off north Nanaimo’s Lost Lake Road
NANAIMO — An ambitious development proposal could transform a mostly forested area into a new community.
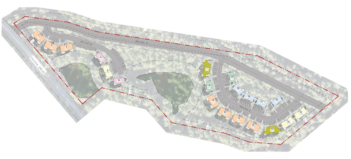
The proposed site at the end of Tanya Dr. calls for 20 townhouse-style fourplexes with 80 living units total.
During a Thursday, Feb. 27 Design Advisory Panel meeting, the project’s development manager with the District Group Kurtis Buick said a condition of rezoning the area for development included building a new public road for the area.
“We have a main throughfare road that’s a dedicated road that stands 10 to 20 metres in width as you move from west to east across the site. This road will be dedicated to the City and will eventually turn into a connection between Tanya Dr. and Lost Lake Rd. eventually, as the neighbouring parcels developed out in the future.”






